spolupráce:
Tereza Rozsypalová
konzultace zahradnických a krajinářských úprav:
Alena Mynarčíková
vizualizace:
Vojtěch Marek
plakát:
Ema Sazama
místo:
Moravské Budějovice
soutěž:
2024 - 3. místo
Je třeba kultivovat i prostředí vzdělávacích institucí. Návrh je součástí této změny.
Nebouráme, ale přestavujeme. Snažíme se o udržitelný přístup.
Ctíme původního génia loci.
ZÁKLADNÍ PRINCIPY NÁVRHU
Celé prostředí kultivujeme a dáváme mu jasný řád, využíváme stávající konstrukce, čímž snižujeme i celkové náklady na rekonstrukci. Zachováním půdorysného rozsahu objektu zachováváme i stávající vzrostlou zeleň, která má nezanedbatelnou hodnotu. Odstraňujeme převážně nevhodné dřeviny označené v dendrologickém průzkumu, přičemž je nahrazujeme novou výsadbou.
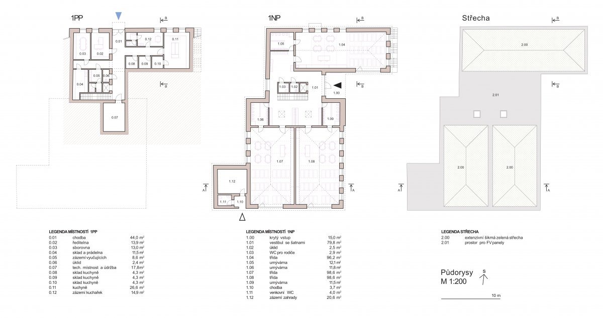
Provozně oddělujeme část pro děti a pro zázemí školky a každá má svůj samostatný vstup. Dětem je určeno první patro z jižní strany v úrovni zahrady, zázemí je umístěno do suterénu ze severní strany.
U stávajícího objektu zachováváme obvodové stěny a základy, sklep pod starší částí zasypáváme. V suterénu snižujeme úroveň podlahy a zachováváme stávající hloubku základů, které jsou dle podkladů dostatečně hluboké i pro odstranění přihrnuté zeminy na severní straně pozemku. Z této strany vytváříme dvoupodlažní objekt. Srovnáním úrovně terénu se sousedním pozemkem vzniká funkční prostor pro zásobování školky, včetně nové přístupové brány z ulice Urbánkova. Výškově vše přirozeně navazuje. Odstraněná zemina bude využita pro dorovnání terénu u vstupu do školky.
ARCHITEKTONICKO A PROVOZNĚ-FUNKČNÍ ŘEŠENÍ
Ze zahrady je navržen nový krytý vstup, s informační vitrínou, do společného vestibulu. Na něj navazují šatny, umývárny a jednotlivé třídy (3 třídy po 24 dětech). Jádrem vestibulu jsou vertikální komunikace (schodiště a jídelní výtah) propojující podlaží se suterénem, úklidová místnost a toaleta pro dospělé.
Třídy tvoří prostorné místnosti otevřené do valbové střechy. Velkým prosklením jsou propojeny se zahradou, to zároveň slouží i jako nutná druhá úniková cesta daná platnou legislativou požární bezpečnosti budov. Součástí tříd jsou i klasická otvíravá okna s parapetem, která do severní třídy přináší i přímý kontakt s centrem Moravských Budějovic výhledem na kostel sv. Jiljí.
Suterén je pomyslně rozdělen na část kuchyně se zázemím (šatna, sklady), na část pro vyučující (zahrnující ředitelnu, sborovnu, šatny a sklad) a technické zázemí a údržbu. Služební přístup je doplněn o nová odstavná stání přímo na pozemku. Rozvoz připraveného jídla probíhá na vozíku v uzavřených várnicích přímo do jednotlivých tříd. Hygienické požadavky jsou splněny.
Z hlediska požadavků památkové péče je silueta objektu při pohledu z centra města zachována.
Zázemí pro zahradu (venkovní toaleta a sklad), je umístěno v jihozápadní části objektu.
Zahradu dělí od zásobovací části opěrná stěna s obslužným venkovním schodištěm umístěným podél objektu školky. Hlavní vstup z ulice Husova je zachován a slouží pouze dětem a jejich doprovodu. Za vstupem je navržena rozšířená plocha pro kola a koloběžky. Herní prvky podél cesty přímo navádí ke vstupu do objektu. Zahrada je provozně rozdělena na tři části: zahradu dynamickou (hřiště na míčové hry, trampolíny, pryžový pás s boulemi, kopeček se skluzavkou), zahradu přírodní (dešťová zahrada s vyústěním většiny dešťových vod a návazností na modrozelenou infrastrukturu návrhu, broukoviště, nízké keře s možností úkrytu - divočina a dřevěné balanční prvky, včetně stávající lanové pyramidy) a zahradu tematickou (domečky pro hry na obchod, sousedy, nácvik dopravy - okruh pro koloběžky, pískoviště - písková laboratoř a pěstitelské záhony. Zde je i plocha pro případnou venkovní učebnu, skleník apod.
KONSTRUKČNÍ, MATERIÁLOVÉ A TECHNICKÉ ŘEŠENÍ
V maximální míře zachováváme stávající základy a obvodové stěny. V suterénu novější části snižujeme úroveň čisté podlahy. Všechny střechy jsou sneseny, vnitřní dělení je odstraněno. Jsou vybourány nové otvory. Stávající části budou zrevidovány a ochráněny proti zemní vlhkosti. Nově bude vystavěna z keramických tvárnic vnitřní dispozice, nově jsou řešeny skladby podlah, celý objekt je zastřešen novou žb střechou s profilací třech valbových střech. Tato deska slouží pro celkové ztužení objektu. Celý objekt je zateplen kontaktním zateplovacím systémem a omítnut. Římsy a plochy mimo třídy jsou hladké, plochy obepínající třídy jsou s omítkou strukturovanou. Výplně otvorů jsou řešeny jako dřevěné s barevným nástřikem a trojsklem a venkovním stíněním ve skrytých kastlících. Střecha je zateplena a opatřena fóliovou izolací, vystupující části (valbové střechy) jsou doplněny o minimální skladbu extenzivní zelené střechy ploché části střechy jsou rezervou pro možné umístění fotovoltaických panelů. Střecha je doplněna o světlíky.
Venkovní pochozí plochy tvoří žulová kostka s možností přirozeného zasakování. Dopadové plochy herních prvků jsou navrženy jako pískové.
Vnitřní plochy jsou omítané. Umývárny apod. jsou opatřeny keramickým obkladem. Prostor valbové střechy je doplněn o podvěšený podhled z dřevovláknitých desek pro dobrou akustiku ve třídách. Ve třídách se objevují ocelová táhla, která slouží i pro zavěšení dělícího závěsu pro možnost rozdělení třídy a pro umístění lišt reflektorů pro nasvícení střídy. Nášlapnou vrstvu podlahy tvoří marmoleum a jednu celou stěnu tvoří nábytková sestava, která obsahuje prostor pro uložení hraček, peřin, matrací, kancelářských věcí, kuchyňskou linku apod. Součástí této sestavy je i skryté vedení vzduchotechniky. Volné nábytky budou dřevěné. Zvolené barvy uvažujeme jako neutrální, tlumené. Všechny použité materiály jsou navrženy přírodní.
Přípojky plynu a silnoproudu budou zachovány. Přípojky kanalizace a vody doporučujeme upravit, i když to není úplně nutné, usnadní to následný provoz.
ENERGETICKÝ KONCEPT
Při plánovaném komplexním zateplení, splnění současných legislativních požadavků a využití rekuperace předpokládáme celkovou tepelnou spotřebu objektu na 30 kW.
Jako zdroj tepla, opět ve vztahu k legislativě a ekonomice pořízení a provozu, uvažujeme tepelné čerpadlo vzduch-voda s nominálním výkonem 23-24 kW (80% tepelné potřeby) s doplněním o záložní elektrokotel s nominálním výkonem cca 22 kW. Celý systém bude pracovat do velkoobjemové akumulace (minimálně 1500 l), která nám spolu s celoročním provozem objektu umožní instalaci FV panelů na plochou část střechy do instalovaného výkonu 18 kWp. Skutečná instalovaná plocha by vyplynula z požadavků na minimální elektrovybavenost v létě tak, aby nevznikaly přetoky energie do sítě (režim letního přichlazování objektu, ohřev TUV atp.).
Distribuční soustavu uvažujeme teplotně dvouúrovňovou. V horní části objektu (školkový provoz, kvalitní zateplení) by bylo použito velkoplošné podlahové vytápění a letní plošné přichlazování bez negativního proudění chladného vzduchu. Ve spodní části (v zázemí), by byl tělesový systém o teplotním spádu v možnostech výkonu tepelného čerpadla, ale s ohledem na stávající konstrukce a příznivého vlivu zahloubení v terénu bez letního strojního přichlazování.
Celá koncepce předpokládá provoz se smluvně zajištěným servisem pro pravidelné kontroly (pro udržení dlouhodobé spolehlivosti zařízení – vzduchotechnika, strojní vybavení) bez nároku na speciální znalosti obsluhy.
