spolupráce:
Michaela Tománková
vizualizace:
Jakub Frolík
místo:
obec Novosedly
studie:
2017
Novostavba hasičské zbrojnice je navržena na okraji obce Novosedly. Jedná se o malou zbrojnici pro 10 dobrovolných hasičů s garáží pro dvě požární vozidla, spojenou do jednoho objektu se zázemím technických služeb obce. Návrh zachovává stávající odstup okolních objektů od veřejné komunikace, který je cca 18 metrů, tento předprostor následně kultivuje.
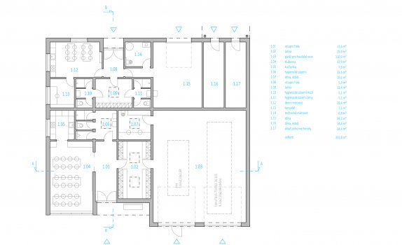
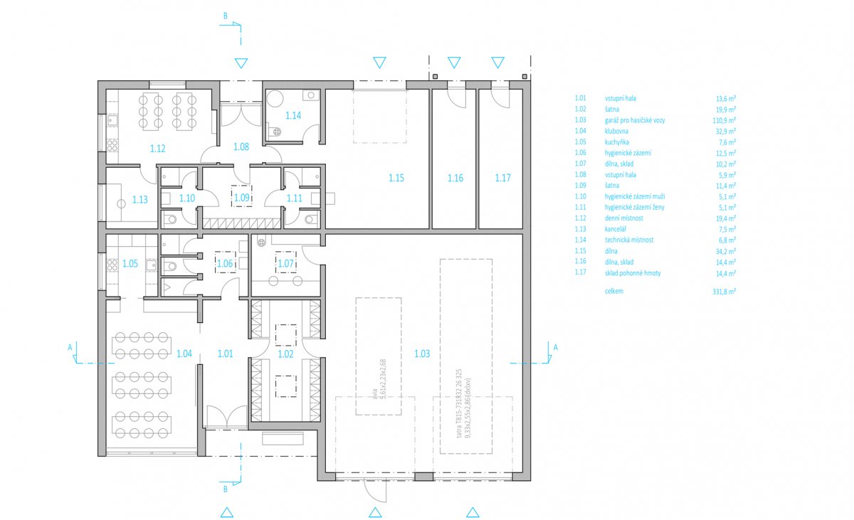
Stavba je jednopodlažní, nepodsklepená. Je tvořena jednoduchými kubickými objemy. Dominantní je převýšená a předstupující hmota dvojgaráže s transparentními vraty odhalujícími zaparkovaná hasičská vozidla a velký nápis „požární zbrojnice“ na čelní fasádě. Nižší hmota objektu sdružuje ostatní provozy zbrojnice přístupné z uliční strany
a prostory technických služeb, které jsou orientované do vnitřního dvora. Hasičský sbor má v přední části k dispozici šatnu, hygienické zázemí, klubovnu s kuchyňkou a dílnu se skladem. Klubovna je velkorysým prosklením orientována do ulice. V zadní části objektu je situován druhý vstup, a to do provozů technických sítí - se šatnou, denní místností, kanceláří, hygienickým zázemím, technickou místností a sklady dle požadavků zadavatele.
Za tímto objektem jsou technickým sítím k dispozici ještě další sklady a garáže, netopené, v samostatném lehkém objektu. Tyto dvě hmoty propojuje po straně lehké přestřešení, které slouží jako venkovní krytý skladový prostor.
Garáž zbrojnice je provedena v pohledovém betonu se zvýrazněnou texturou, který podtrhuje její dominanci. Zbývající objekt je řešen jako zděný, v bílé omítce, v kombinaci se dřevem, které se objevuje i jako materiál oken, jako obklad zapuštěného závětří a ostění a nadpraží čelního okna, které má betonový parapet. Budova garáží a skladů v zadní části, včetně lehkého přestřešení, jsou uvažovány jako konstrukce kovové.
Ploché střechy jsou uvažovány jako vegetační bezúdržbové.
Technicky se uvažuje s tepelným čerpadlem a vzduchotechnikou.
